AREA CENTRAL DE LA CIUDAD AUTONOMA DE BUENOS AIRES, ARGENTINA
EDIFICIO RESIDENCIAL, COMERCIAL Y DE OFICINAS
Rol OU:
Autores del proyecto de arquitectura
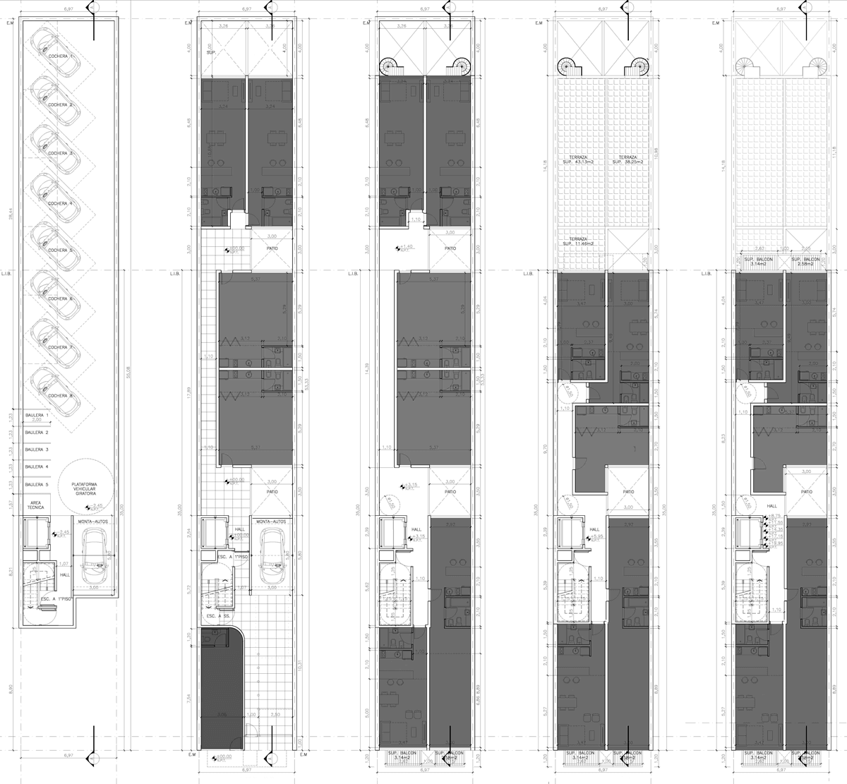
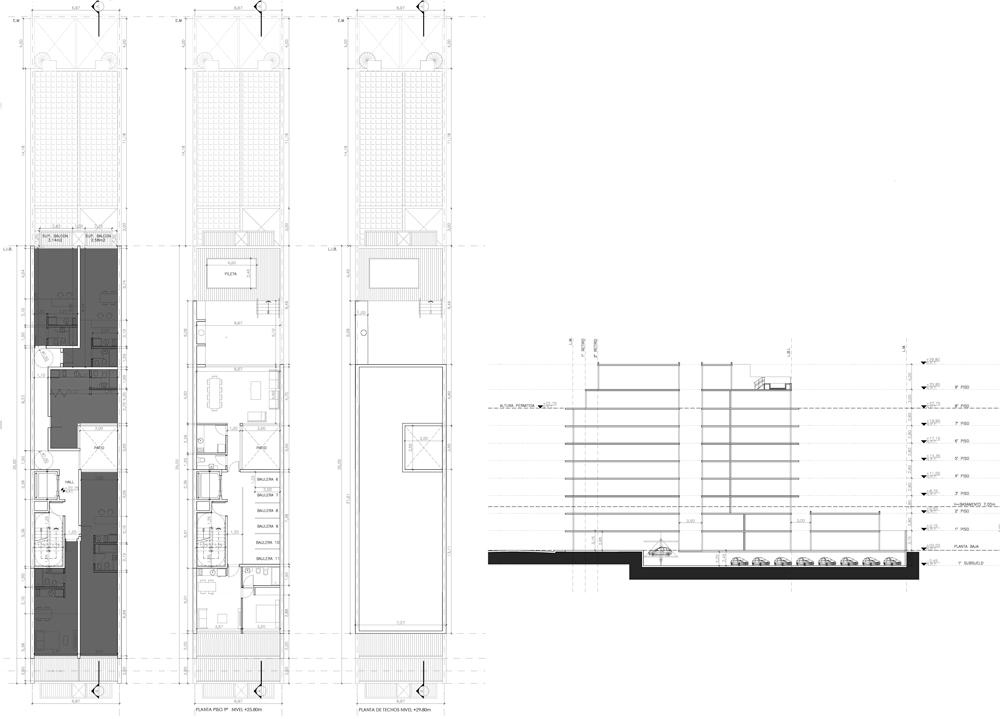
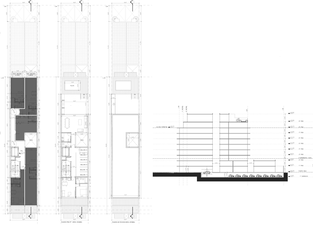
Edificio multiuso dentro del Área Central de la Ciudad de Buenos Aires.
El proyecto se desarrolla en un área sumamente densificada de la Ciudad de Buenos Aires, ofreciendo un mix de usos, residencial, comercial y de oficinas.
Edificio multiuso dentro del Área Central de la Ciudad de Buenos Aires.
El proyecto se desarrolla en un área sumamente densificada de la Ciudad de Buenos Aires, ofreciendo un mix de usos, residencial, comercial y de oficinas.