Oficina Urbana

2010

EDIFICIO RESIDENCIAL Y DE ESTUDIOS PROFESIONALES

Promotor:

Desarrollador privado

Rol OU:

Autores del proyecto arquitectónico

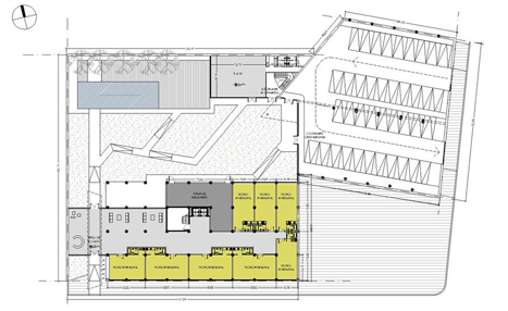
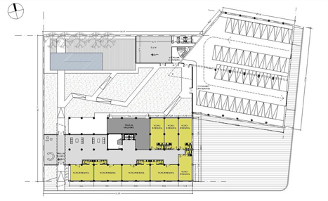
Proyecto de un edificio residencial y estudios profesionales inscripto en un importante área de reconversión urbana, en el barrio de Parque Patricios, Ciudad Autónoma de Buenos Aires.

Proyecto de un edificio residencial y estudios profesionales inscripto en un importante área de reconversión urbana, en el barrio de Parque Patricios, Ciudad Autónoma de Buenos Aires.