Oficina Urbana

2019-2018

VIVIENDA JARDIN

Rol OU:

Autores del proyecto de arquitectura

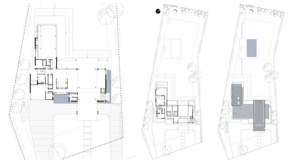
La Casa M, es una vivienda unifamiliar de 900 m2, de múltiples relaciones con el jardín, el principal atractivo social de sus residentes.

La Casa M, es una vivienda unifamiliar de 900 m2, de múltiples relaciones con el jardín, el principal atractivo social de sus residentes.